Small Office
Projects About Contact
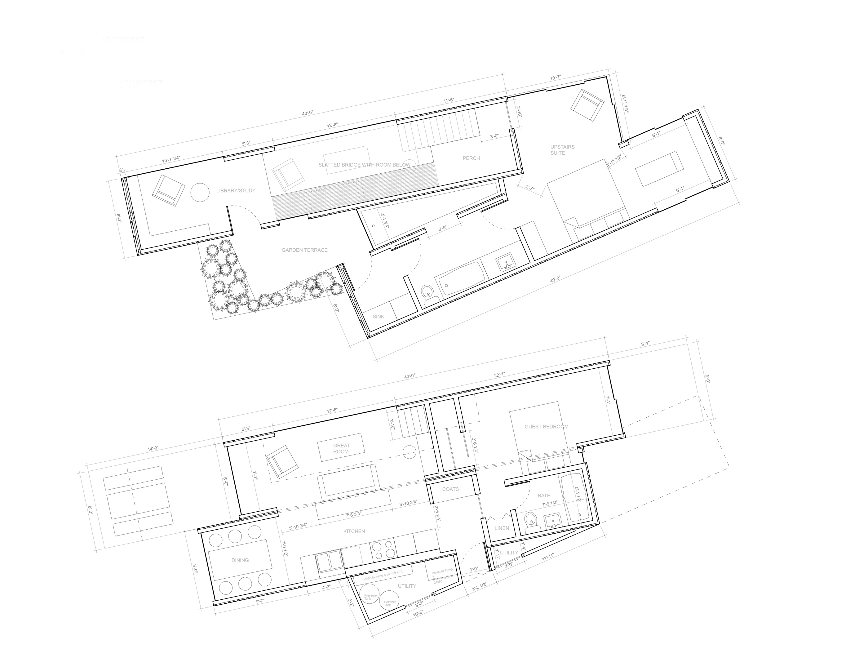
Container Casita
Clarkdale, AZ
2017 - ongoing
A home that exploits elemental forms and materials to create spaces of intricacy, complexity, beauty, and comfort within an otherwise vast, raw, and unforgiving landscape using the manufactured parameters (restraints) of the shipping container to develop an architectural language of freedom - a bridge between home and terrain.
Projects About Contact







